$2,300/mo
62 days on market

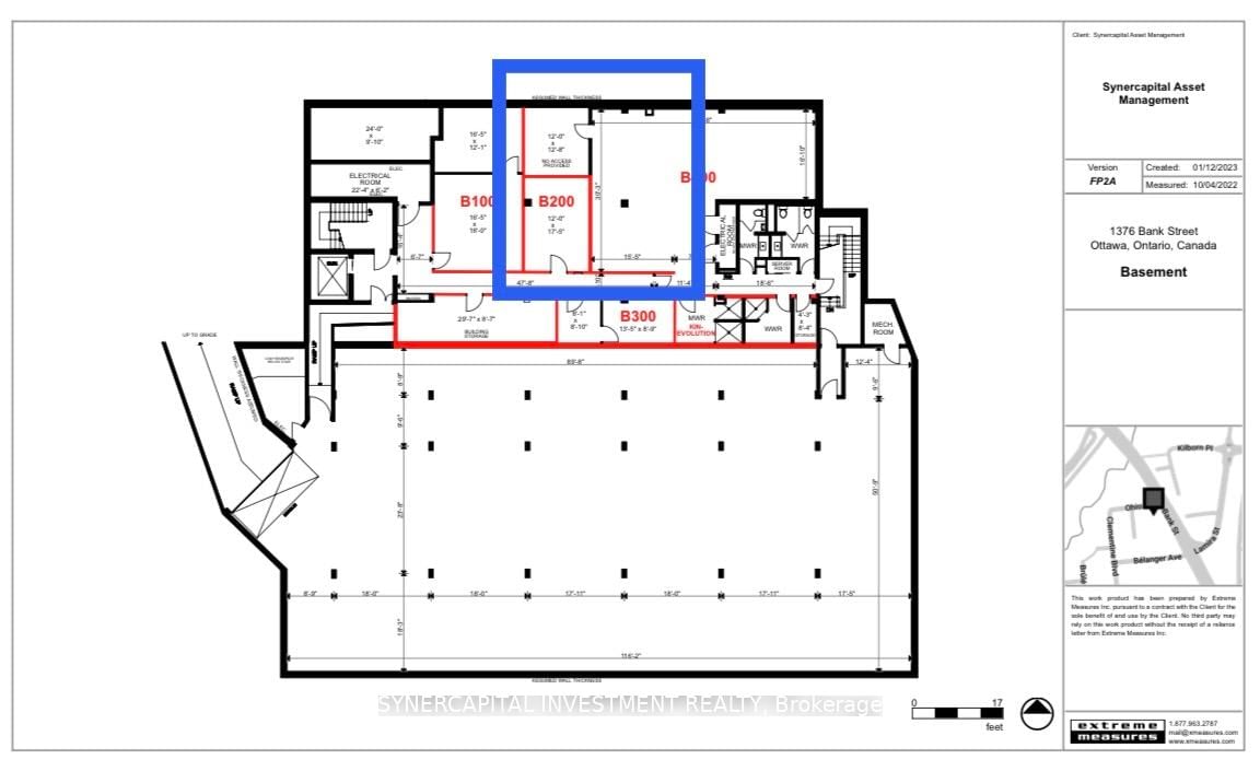
Approx 900 rentable square feet of turn-key office space in basement of well-managed office building! Currently divided into 3 large rooms, and can be divided further. Landlord can provide/organize desired fit-up at cost, pro-rated over the lease term! Space is currently used as physiotherapy/osteopathy/RMT wellness practitioners but has wide variety of applications.See marked-up floorplans in tandem with the following description: the proposed new space crops some of the (current) B400 open floor plan and closes it off for owner personal use; B200 is absorbed, and doors opened between spaces as tenant requires. There is some flexibility re: placement of walls; possible inclusion of all or some gym equipment in the rental. Equipment is not for sale unless tenant is leasing space. All utilities and operating expenses included in the rent - fully Gross Lease! Escalations of $50/mo/year. Excellent location close to 417, Riverside Drive,Bank Street, and Billings Bridge shopping plaza. Building is home to professional tenants such as law offices, mental wellness practitioners, not-for-profit, technology, etc. Video walk through is available upon request.
Listing provided by SYNERCAPITAL INVESTMENT REALTY
Based on information from the Toronto Regional Real Estate Board (TRREB). All information deemed reliable but not guaranteed and should be independently verified. The accuracy of information is not guaranteed, has not been verified, and does not constitute professional advice.
IDX information is provided exclusively for consumers' personal, non-commercial use. It may not be used for any purpose other than identifying prospective properties consumers may be interested in purchasing or renting.
Sold and leased listing data is provided under the Virtual Office Website (VOW) data feed and is available only to registered users who have agreed to the Terms of Use. This data is for personal, non-commercial use only and may not be copied, redistributed, or retransmitted.
MLS®, REALTOR®, and the associated logos are certification marks owned by the Canadian Real Estate Association (CREA) and identify real estate professionals who are members of CREA.
This listing content is not intended to solicit properties already listed for sale or individuals who are currently under contract with a brokerage.
Data last updated: April 18, 2026 at 01:05 a.m.