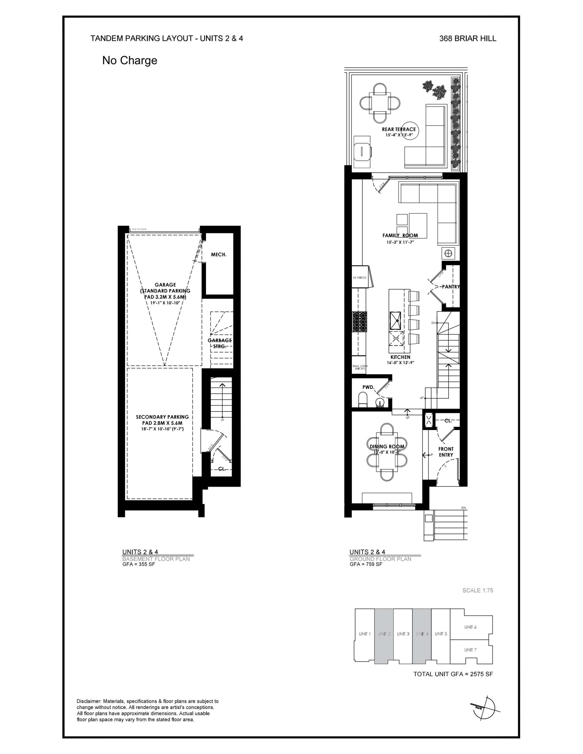
Ruby - Tandem Parking Layout — The Briar on Avenue Towns | TheCondoPortal