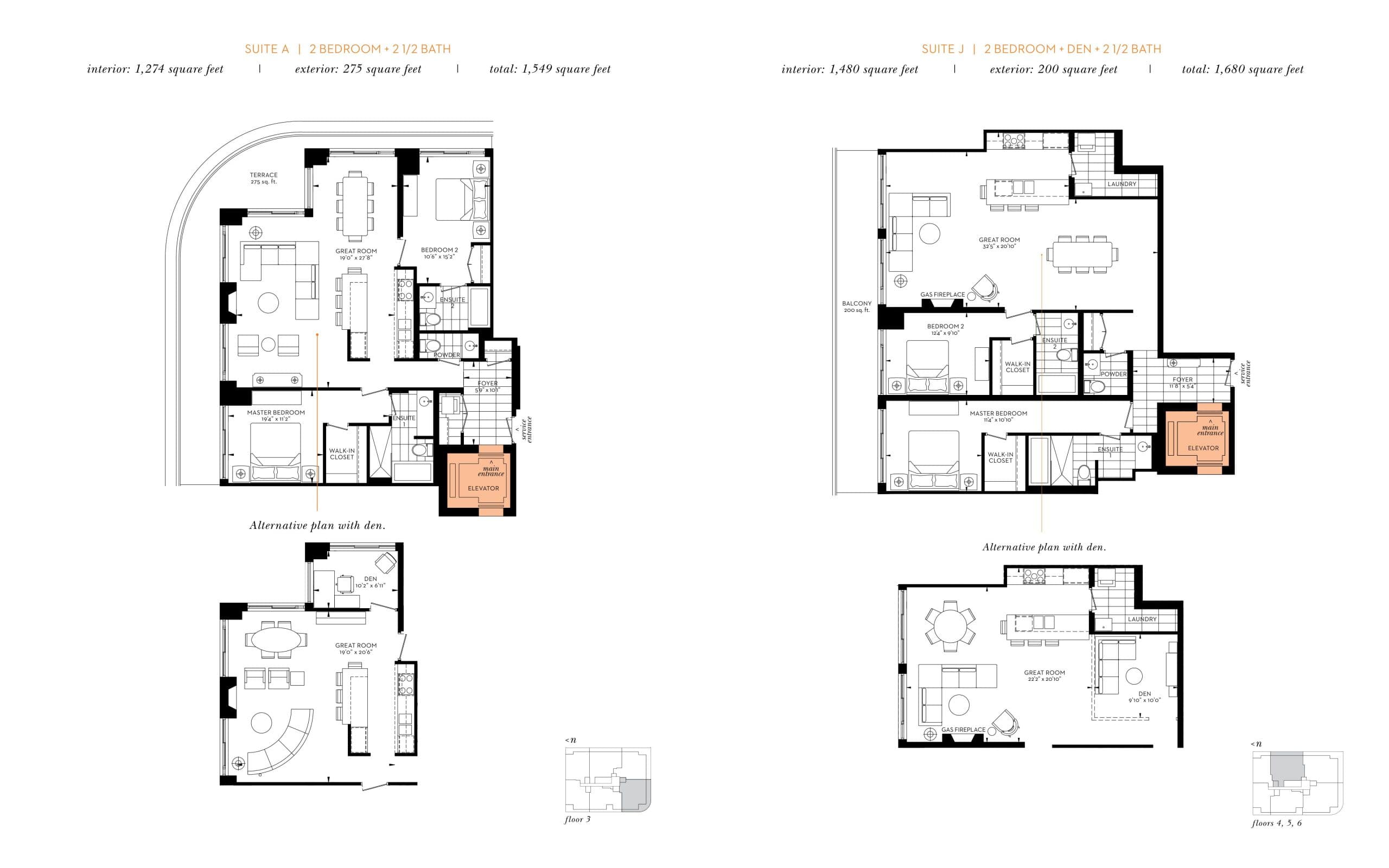
Suite A — The Davies | TheCondoPortal